드라이룸 기본 구조 및 인피니트 특허 기술

드라이룸 기본 구조 (노점온도 -50 °C 이상의 일반 드라이룸)

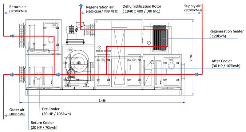
제습 공조기 예시 (노점온도 -50 °C, 30평용)

장비크기 6480 * 2500 * 2700
총 소비 전력 400kwh
로터 재원 1940 * 400 DRI inc.
Molecular Sieve G3-MH
순환 풍량 max. 16800 CMH
냉각 시스템 용량 80RT

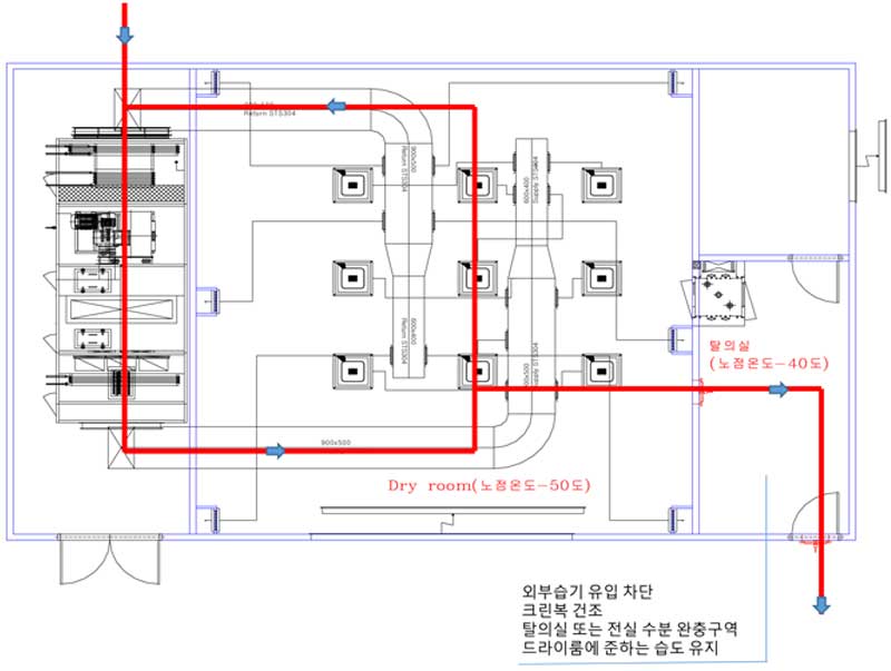
드라이룸 공기 흐름 예시 (노점온도 -50 °C, 30평용)

인피니트 드라이룸 특허기술 (초 저노점용, 노점온도 -50 °C 이하에서 오염 신속 제거 기술)

1. 내부 상승기류 형성 : 최 단거리로 오염 배출, 주변 오염확산 방지
2. 오염구역 공기 집중 흡입

인피니트 드라이룸 특허기술

Info
(주)웰마이크로텍
본사 : 경기도 수원시 영통구 청명로 21번길 19-353호
공장 : 경기도 파주시 탄현면 갈현리 239-4번지 TEL : 031-202-7791 FAX : 031-949-3890
사업자등록번호 : 113-86-23996
대표이사 : 윤용중
COPYRIGHT(c) 2018 (주)웰마이크로텍. ALL RIGHT RESERVED.